Rice Army Air Field
|
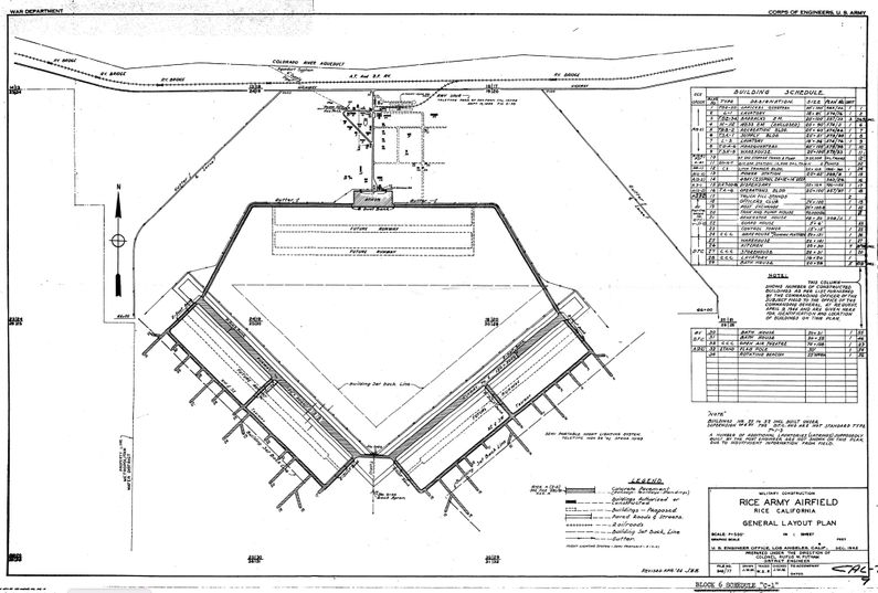
HistoryRice Army Air Field was used to train pilots and crews of aircraft whose mission was to support ground troops and to familiarize those ground troops with air operations. The airfield consisted of two paved 5,000' runways and numerous dispersal pads extending off the runways to the south. The two runways were connected at the south end and extended to the northeast and northwest at a 90-degree angle to each other forming a "V", each runway was 150' wide. In order to house the more than 3,000 men at the airfield, the Army constructed temporary barracks, recreation and mess halls, powerhouses, hangars, and dormitories at the north end of the airfield. By 1943, 4,000 men were reportedly stationed there. Unlike the DTC/C-AMA camps with their tent structures, the airfield had more substantial but still, temporary buildings, and some of the concrete pads for these structures are still visible. Specific buildings included the Base headquarters, Airfield Operations Building, Mess hall, Lavatories, 700 Series buildings as barracks, Shower buildings, Storehouses, Officer’s lavatory, and shower building and a Power/pump house.
Current StatusAbandoned, foundational remains only.
See Also: Sources:
Links:
Fortification ID:
Visited: 27 Nov 2022
| |||||||
