Battery 216

From FortWiki
Jump to navigation Jump to search

Battery 216 (1942-1947) - Battery 216 was a reinforced concrete, World War II 6 inch coastal gun battery on Camp Hero, Montauk Point, Suffolk County, New York. Battery construction started 26 May 1942, was completed on 18 Jun 1943 and transferred to the Coast Artillery for use 12 Jan 1944 at a cost of $ 198,008.51. Deactivated in 1947.

World War II

Part of the Harbor Defense of Long Island Sound.

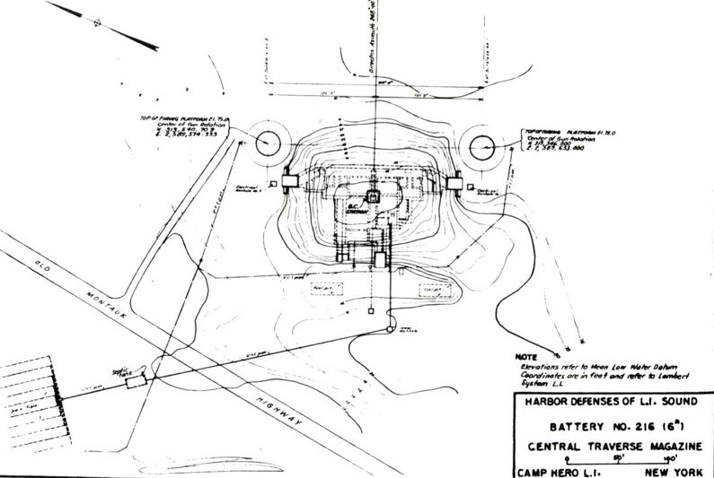
Originally built as a World War II concrete coastal gun battery with two 6" M1903A2 rapid fire guns mounted on M1 Shielded Barbette Carriages (SBC) placed on either side of an earth covered reinforced concrete support structure. The guns and carriages were transferred from Wellman 27 Feb 1943 to Camp Hero.


6" Gun at Fort Columbia Originally at Fort McAndrew, Battery 281, Argentia, NL, Canada
These 6" World War II coastal gun batteries were designed to replace obsolete Endicott Period Batteries. Of the 87 planned only 45 were completed and many of those were not completed until late in the war (1944-1945).

The 6" guns fired a 105 pound armor-piercing projectile with a range of over 15 miles at a rate of up to 5 rounds per minute. The gun crews were protected by a thick shield around the gun. Only six of these guns remain in the world, two at Fort Columbia in Battery 246, two at Fort Pickens in Battery 234, and two at Fort McAndrew in Battery 282 in Argentia, Newfoundland and Labrador, Canada.

6" Gun Crew


Battery 216 Armament (edit list)
Empl
No
Caliber
Type
Barrel
Length
Model Serial
No
Manufacturer Carriage Service
Dates
Notes
1 6" Rifle 310" M1903 A2 31 Watervliet Shielded Barbette (SBC),
M1, #97, Wellman
1942-1947 See note 1
2 6" Rifle 310" M1903 A2 56 Watervliet Shielded Barbette (SBC),
M1, #96, Wellman
1942-1947 See note 1
Source: RCW Form 1, 4 May 1945, Coast Defense Study Group, Berhow, Mark A. ed, American Seacoast Defenses: A Reference Guide, 2nd Edition, CDSG Press, McLean, VA, 2004, ISBN 0-9748167-0-1, pages 104-105, 206
Note 1: Guns and carriages from Wellman 27 Feb 1943. CDSG Gun Card Collection from NARA
Battery 216 Plan


Current Status

No period guns or mounts in place.


{"selectable":false,"height":"-500","width":"-500"}

Location: Camp Hero, Montauk Point, Suffolk County, New York

Maps & Images

Lat: 41.0661734 Long: -71.8613496

  • Multi Maps from ACME
  • Maps from Bing
  • Maps from Google
  • Elevation: 78.70'

Sources:

  • U.S.Army, Supplement to the Harbor Defense Project of Long Island Sound, (HDLIS-AN-45), 15 Feb 1945, CDSG

Links:

Visited: No