Battery AMTB - Navy Field
Battery AMTB - Navy Field (1943-1946) - Battery AMTB - Navy Field was a reinforced concrete World War II 90mm gun battery on Fort MacArthur, California. AMTB stands for Anti Motor Torpedo Boat. Battery construction started Jun 1943, was completed Sep 1943 and transferred to the Coastal Artillery for use 4 May 1944. Deactivated in 1946.
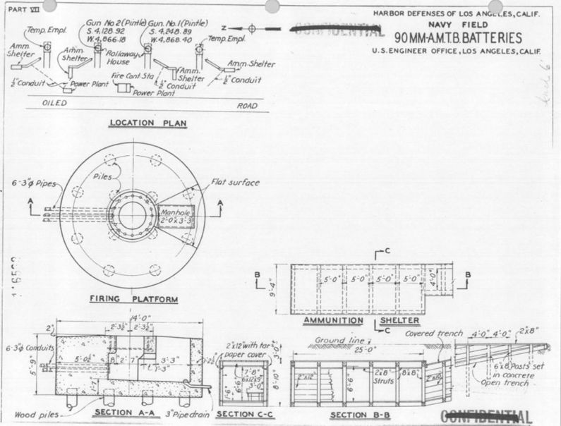
Part of the Harbor Defense of Los Angeles.
Four Anti Motor Torpedo Boat (AMTB) batteries were built for the Harbor Defense of Los Angeles during World War II under Job No. FS-8 at a total cost of $76,576.03. All four batteries were constructed between June 1943 and October 1943 and all four were accepted for service on 4 May 1944.
Each of the four batteries consisted of two fixed gun emplacements of 90mm M1 guns on M3 pedestal mounts with a heavy shield. Additionally provisions were made for two temporary mobile gun positions at each of the four locations and each position had supporting structures for ammunition storage and a central power source. Two of the AMTB batteries were located on Fort MacArthur, (Battery AMTB - Navy Field & Battery AMTB - Gaffey Bulge) and the other two were located off the main reservation at Terminal Island (Battery AMTB - Terminal Island) and Bluff Park, Long Beach (Battery AMTB - Bluff Park).
The dual mission of these AMTB batteries was both to defend the harbor against smaller, faster naval vessels that might evade the larger batteries and to defend against aerial attack.
|
The above photos were taken at Fort Monroe, Battery Parrott From FM 4-91: "This weapon consists of the 90-mm gun M1 and top carriage M1A1 on the 90-mm gun mount M3. The mount M3 is of the turret type, the shielding being constructed of boiler plates. This boiler plate shield provide fragmentation protection only. No shielding is provided at the rear due to the requirements for service of the piece. A sighting port in the shielding in front permits sighting in direction by the gun pointer." References:
| |||
| Empl No |
Caliber Type |
Barrel Length |
Model | Serial No |
Manufacturer | Carriage | Service Dates |
Notes | |
|---|---|---|---|---|---|---|---|---|---|
| 1 | 90mm Rifle | 50 Cal | M1 | 7175 | General Motors | Pedestal Mount, M3, #241, F B D | 1943-1946 | ||
| 2 | 90mm Rifle | 50 Cal | M1 | 5114 | Watervliet | Pedestal Mount, M3, #139, F B D | 1943-1946 | ||
| Source: RCW Part 1, 5 Dec 1944, Coast Defense Study Group, Berhow, Mark A. ed, American Seacoast Defenses: A Reference Guide, 2nd Edition, CDSG Press, McLean, VA, 2004, ISBN 0-9748167-0-1, pages 80-81 | |||||||||

Current Status
No gun or mounts in place
|
{"selectable":false,"width":"500"} |
Location: Fort MacArthur, Navy Field, Los Angeles County, California Maps & Images Lat: 33.71667 Long: -118.285412 |
Sources:
- U.S.Army, Supplement to the Harbor Defense Project Harbor Defenses of Los Angeles, (LA-AN-WDC-44), 31 Aug 1944, CDSG
Links:
Visited: No
|
Click on the picture to see a larger version. Contribute additional pictures - the more the better! |




