Fort Frey: Difference between revisions

From FortWiki
Jump to navigation Jump to search
John Stanton (talk | contribs)
No edit summary
John Stanton (talk | contribs)
No edit summary
Line 8: Line 8:
|width="50%"|<!--[[Image:.jpg|300px|thumb|right|Fort Frey]]-->
|width="50%"|<!--[[Image:.jpg|300px|thumb|right|Fort Frey]]-->
|-
|-
|colspan="2"|[[File:Fort Frey Front Elevation 1937.jpg|795px|thumb|center|Fort Frey Front Elevation]]
|colspan="2"|[[File:Fort Frey Front Elevation 1937.jpg|795px|thumb|center|Fort Frey Front Elevation.]]
|}
|}
== Early History ==
== Early History ==
Line 15: Line 15:
During [[Queen Anne's War]] (1702-1713) the Frey cabin was fortified, palisaded and garrisoned by British troops until the end of the war.
During [[Queen Anne's War]] (1702-1713) the Frey cabin was fortified, palisaded and garrisoned by British troops until the end of the war.
== The Stone Fort ==
== The Stone Fort ==
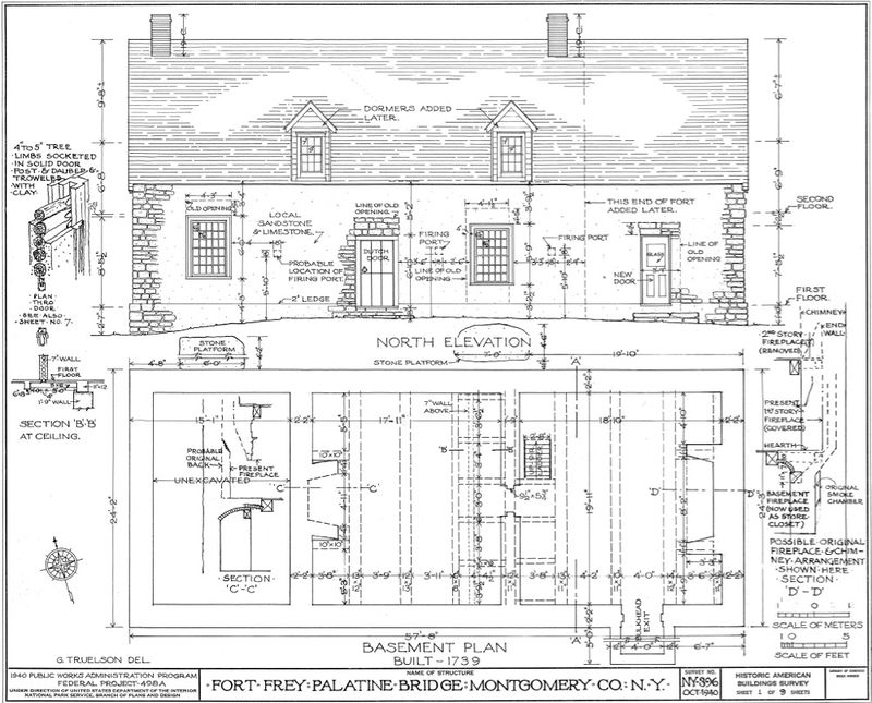
[[File:Fort Frey Basement Plan.jpg|thumb|center|800px|Fort Frey North Elevation and Basement Plan.]]
The present day stone structure replaced the original log cabin circa 1739 and was built from local sandstone by Frey's son John. The building was two stories high with a full basement. The basement had a fireplace and was used in the cold winters to house the family. The fort was probably never palisaded but did have gun loopholes and was considered a strong defense.
The present day stone structure replaced the original log cabin circa 1739 and was built from local sandstone by Frey's son John. The building was two stories high with a full basement. The basement had a fireplace and was used in the cold winters to house the family. The fort was probably never palisaded but did have gun loopholes and was considered a strong defense.
{{Clr}}


== [[French & Indian War]] (1754-1763) ==
== [[French & Indian War]] (1754-1763) ==

Revision as of 21:03, 17 December 2015

Fort Frey (1739-1760) - A French & Indian War settler fort established in 1739 in the present day town of Palatine Bridge, Montgomery County, New York. Named Fort Frey after the Frey family who built a fortified stone residence that replaced a previously built stockaded log cabin. Abandoned as a fortification 1760.

Fort Frey Front Elevation.

Early History

Hendrick Frey was a native of Zurich, Switzerland and the first white settler in the middle Mohawk Valley. Frey bought land from the Mohawk Indians and settled in what became present day town of Palatine Bridge. The nearest settlements at the time were in Schenectady, some thirty miles away. Frey built a cabin and established an Indian trading post in 1689.

During Queen Anne's War (1702-1713) the Frey cabin was fortified, palisaded and garrisoned by British troops until the end of the war.

The Stone Fort

Fort Frey North Elevation and Basement Plan.

The present day stone structure replaced the original log cabin circa 1739 and was built from local sandstone by Frey's son John. The building was two stories high with a full basement. The basement had a fireplace and was used in the cold winters to house the family. The fort was probably never palisaded but did have gun loopholes and was considered a strong defense.

French & Indian War (1754-1763)

During the French & Indian War the fortified stone house was used again to house a small British garrison guarding the Mohawk River route.

Revolutionary War (1775-1783)

During the Revolutionary War the three Frey sons (John, Henry and Bernard) had different loyalties (John was a Patriot, Henry and Bernard were Tories) and were bitterly divided. The fort does not appear to have been garrisoned by either side for any length of time. All three of the sons held officer's commissions during the war, John was a Major in the American army, Henry (Hendrick) was a Colonel but took no active part in the war. Bernard went to Canada and became a captain in Butler's Rangers and was killed in 1813 at Newark by an American cannon ball from Fort Niagra in the War of 1812.

The fort was probably used to shelter local settlers during the British and Indian raids into the Mohawk Valley but it was never known to be attacked during the Revolutionary War.

Frey House

In 1808 Major John Frey built a large stone home adjacent to the fort. The fort and the Frey house have both survived and are said to be in excellent condition.

Current Status

The original buildings (with some changes) still exist.


{"selectable":false,"width":"500"}

Location: Palatine Bridge, Montgomery County, New York.

Maps & Images

Lat: 42.91018 Long: -74.58159

See Also:

Sources:

  • Roberts, Robert B., Encyclopedia of Historic Forts: The Military, Pioneer, and Trading Posts of the United States, Macmillan, New York, 1988, 10th printing, ISBN 0-02-926880-X, page 553.
  • Publications, Volume 6, Buffalo Historical Society, 1903, Buffalo NY, page 86.

Links:

Visited: No